Skip To Content

153 W Ohio Street , #01

Chicago, IL 60654
  • $13
  • STATUS: Active
  • ON SITE: 4 Days
  • MLS #: 12542997
New On Site 4 Days Ago
UPDATED: 34 min ago
$13
  • 0
    BEDS
  • N/A
    ACRES
  • 0
    BATHS
  • 0
    1/2 BATHS
Neighborhood:
Type:
Commercial-Lease
Built:
1905
County:
Area:

School Ratings & Info

Description

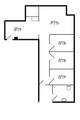
PAPER BOX LOFTS - 900 SQFT PRIVATE OFFICE SPACE IN CENTRAL RIVER NORTH LOCATION. 3 PRIVATE OFFICES + CONFERENCE ROOM. UTILTITES, INTERNET, GYM, AND ROOF DECK ACCESS INCLUDED IN THE MONTHLY RENT. BRAND NEW REHAB BUILDING. DON'T MISS THIS ONE AVAILABLE NOW! ONE YEAR LEASE OR MULTIYEAR LEASE OPTIONS AVAILABLE!



© 2026 Midwest Real Estate Data LLC. All rights reserved. IDX information is provided exclusively for consumers' personal, non-commercial use and may not be used for any purpose other than to identify prospective properties consumers may be interested in purchasing. Information is deemed reliable but is not guaranteed accurate by MTP, MRED or Ani Real Estate. Based on information submitted to the MRED as of 2026-01-13T09:00:27.177 UTC. All data is obtained from various sources and has not been, and will not be, verified by broker or MRED. MRED supplied Open House information is subject to change without notice. All information should be independently reviewed and verified for accuracy. Properties may or may not be listed by the office/agent presenting the information. Some properties which appear for sale on this website may subsequently have sold and may no longer be available. NOTICE: Many homes contain recording devices, and buyers should be aware they may be recorded during a showing.

Digital Millennium Copyright Act
www.anirealestate.com/homes/171821404
Print Image

153 W Ohio Street , #01 Chicago, IL 60654

  • Price: $13
  • Status: Active
  • On Site: 4 Days
  • Updated: 34 min ago
  • MLS #: 12542997
0
Beds
0
Baths
0
½ Baths
N/A
Acres
1905
Built
Neighborhood:
Cook
County:
Cook
Area:
Cook
Property Description
PAPER BOX LOFTS - 900 SQFT PRIVATE OFFICE SPACE IN CENTRAL RIVER NORTH LOCATION. 3 PRIVATE OFFICES + CONFERENCE ROOM. UTILTITES, INTERNET, GYM, AND ROOF DECK ACCESS INCLUDED IN THE MONTHLY RENT. BRAND NEW REHAB BUILDING. DON'T MISS THIS ONE AVAILABLE NOW! ONE YEAR LEASE OR MULTIYEAR LEASE OPTIONS AVAILABLE!
Exterior Features

Frontage Type City Street

Interior Features

Cooling Central Air Heat Ventilation Central Heat/Indiv ControlsForced Air Miscellaneous Inside Common Exercise Room/sElevator/s FreightAccessible EntranceAccessible Washroom/sBasement Number Of TLDocks 0

Property Features

Approximate Age New Construction Built Before1978 YN Yes Electric Service - 0 to 100 Amps Fire Protection Alarm MonitoredAlarm On SiteSprinklers-Wet Geographic Locale Downtown Chicago Leasable Area 900 Possible Use Office Property Offered For Rent Only Property Sub Type Apartment Rental Price 13.33 Tenant Pays Other Type Office/Tech

Listing information © 2026 Midwest Real Estate Data LLC.
Listing provided courtesy of Compass: 773-466-7150.


© 2026 Midwest Real Estate Data LLC. All rights reserved. IDX information is provided exclusively for consumers' personal, non-commercial use and may not be used for any purpose other than to identify prospective properties consumers may be interested in purchasing. Information is deemed reliable but is not guaranteed accurate by MTP, MRED or Ani Real Estate. Based on information submitted to the MRED as of 2026-01-13T09:00:27.177 UTC. All data is obtained from various sources and has not been, and will not be, verified by broker or MRED. MRED supplied Open House information is subject to change without notice. All information should be independently reviewed and verified for accuracy. Properties may or may not be listed by the office/agent presenting the information. Some properties which appear for sale on this website may subsequently have sold and may no longer be available. NOTICE: Many homes contain recording devices, and buyers should be aware they may be recorded during a showing.

Digital Millennium Copyright Act
 
https://bt-photos.global.ssl.fastly.net/mred/orig_boomver_1_12542997-1.jpg https://bt-photos.global.ssl.fastly.net/mred/orig_boomver_1_12542997-1.jpg https://bt-photos.global.ssl.fastly.net/mred/orig_boomver_1_12542997-1.jpg
Logo
Ani Real Estate
7300 S Cottage Grove Ave Suite B
Chicago IL, 60619-1910